Description

Are you looking for a spacious and centrally located upper-floor apartment with a practical layout and excellent accessibility? Then this property is definitely worth a viewing.

Location and accessibility
The property is situated in a central and well-connected area of Rotterdam. Supermarkets, healthcare facilities and schools are all within walking distance. Maashaven metro station is just a short walk away and takes you to the city centre within approximately 15 minutes. Zuidplein Shopping Centre, the largest indoor shopping mall in Rotterdam, is also nearby. By car, you can easily access the Rotterdam ring road.

Layout of the property
First floor
Through your private entrance, you reach the hallway. From here, the stairs lead you to the main living level.

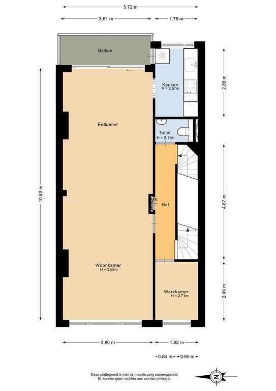
Third floor
The hallway provides access to all rooms on this level. The living room is spacious and bright, offering plenty of natural light. The semi-open kitchen has been recently renovated and is in good condition. From the living room, you have access to the balcony. This floor also includes an additional bedroom, ideal as a home office or guest room. A separate toilet is available on this floor.

Fourth floor
The fourth floor features a spacious main bedroom with a large walk-in wardrobe. The modern bathroom is also located on this floor.

Outdoor space
The balcony is located at the quiet rear side of the property and faces east, allowing you to enjoy pleasant morning sunlight.

Key features
•	Built around 1933
•	Energy label D
•	Living area approximately 94 m²
•	2 bedrooms
•	Heating and hot water via HR-boiler
•	Fully fitted with plastic window frames and double glazing
•	Active homeowners’ association (VvE), contribution €116,- per month
•	Immediate transfer is possible

Do not miss this opportunity and schedule your viewing today!

This information has been compiled with care. However, we accept no liability for any inaccuracies, incompleteness or other irregularities, nor for the consequences thereof. All measurements and surface areas are indicative and non-binding. Buyers are invited to verify these details themselves or have them verified. The information provided should be regarded as an invitation to make an offer or to enter into negotiations.

Features