Description

Interesse? Laat je gegevens achter via de contactknop en we sturen je een link om jouw bezichtiging in te plannen. / Interested? Leave your details using the contact button and we’ll send you a link to schedule your viewing.

Hey! Are you looking for a well-kept and spacious one-bedroom apartment with a stunning view over the Maas River? Easy to reach and close to all the city amenities. Schedule a viewing today!

Neighborhood & Accessibility
This apartment is located on the top floor of a well-maintained complex on the Maasboulevard. Rotterdam city center is easily reachable by bike, and the tram stop is within walking distance. By car, you are quickly on the Rotterdam ring road, and parking is available in front of the building. The Erasmus University is just around the corner, in short, an ideal location!

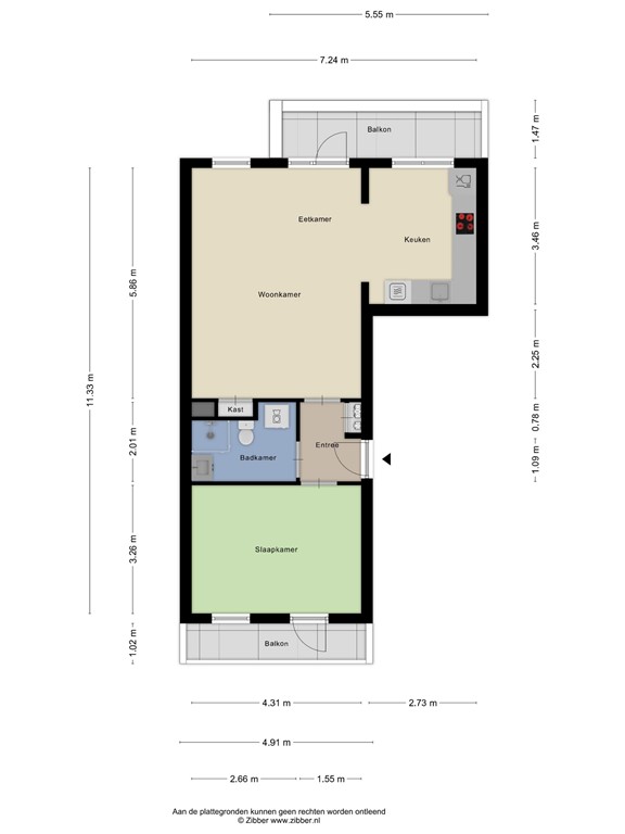
Layout
Third floor:
Through the shared entrance, you reach the front door on the third floor. The hallway gives access to all rooms. The bright living room at the front offers a beautiful view of the Maas River and access to the balcony. The semi-open kitchen is equipped with various built-in appliances. The spacious bedroom is located at the quiet part at the back and has access to the second balcony. The modern bathroom is fitted with a shower, sink, toilet and washing machine connection.

Outdoor Space
This apartment has two spacious balconies: one at the front facing southwest and one at the back facing northeast. This means you can always choose between sun and shade.

Storage
In the basement, there is a private storage room, perfect for bikes or extra belongings.

Key Features:
•	Subleasehold land via Woonstad Rotterdam
•	Ground rent paid off until 10-10-2033, leasehold runs until 10-10-2082
•	MVE-D conditions apply
•	Rental is not allowed, self-occupancy requirement applies
•	Living area approx. 59 m²
•	Built in 1984
•	Energy label B
•	One bedroom
•	Fully double-glazed
•	Heating and hot water via district heating
•	HOA contribution € 126 per month
•	Delivery in consultation, preferably mid-January

This information has been compiled with care. However, we do not accept any liability for any incompleteness, inaccuracies, or other irregularities, nor for the consequences thereof. All provided dimensions and surface areas are indicative and not binding. Buyers are invited to verify these details themselves. The provided information should be considered an invitation to make an offer or to enter into negotiations.

Features