Beschrijving

Laat je e-mailadres achter en je ontvangt een link om een afspraak in te plannen. / Leave your email address and you'll receive a link to schedule an appointment.

Hey! Ben jij op zoek naar een modern 2-kamerappartement op een rustige plek midden in het centrum? Dan is dit goed onderhouden appartement echt iets voor jou. Plan nu een bezichtiging via de contactknop!

Locatie
Dit appartement ligt in Rubroek, een rustige en groene wijk direct naast het bruisende centrum van Rotterdam. Binnen een paar minuten wandel je naar hotspots als de Meent of de Pannenkoekstraat voor een gezellig diner of een drankje op het terras. In de buurt vind je volop winkels, supermarkten en eetgelegenheden. De bereikbaarheid is ideaal: de tram stopt om de hoek en met de auto zit je zo op de ring. Kortom een centrale locatie met de perfecte balans tussen stadsleven en wooncomfort.

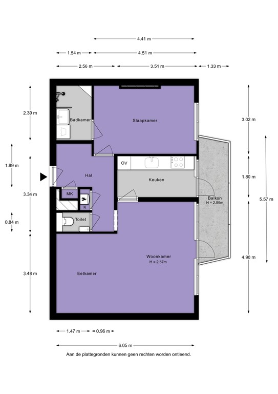
Indeling
Het appartement bevindt zich op de eerste verdieping en is te bereiken via een centrale portiek. Je komt binnen in een ruime hal die toegang geeft tot de woonkamer, slaapkamer, het toilet en de badkamer. De lichte woonkamer biedt plek voor een zit- en eethoek en grenst aan de moderne keuken met diverse inbouwapparatuur. Vanuit zowel de woonkamer als de keuken stap je zo het balkon op, gelegen op het westen. De slaapkamer ligt aan de voorzijde en geeft toegang tot de moderne badkamer. Er is ook een separaat toilet.

Buitenruimte
Het balkon ligt op het westen dus hier kun je ’s avonds lekker in de zon zitten en ontspannen na een drukke dag.

Berging
In de onderbouw is een berging van circa 4 m² aanwezig.

Bijzonderheden
•	Woonoppervlakte: circa 60 m²
•	Energielabel: C
•	Bouwjaar: 1982
•	1 slaapkamer
•	CV-ketel voor verwarming en warm water
•	Actieve VvE, bijdrage: € 135,- per maand
•	Erfpacht tot 11 december 2079, afgekocht tot 15 januari 2064
•	Oplevering: per direct

Mis deze kans niet en plan snel een bezichtiging!

Deze informatie is zorgvuldig door ons samengesteld. Wij aanvaarden echter geen aansprakelijkheid voor eventuele onvolledigheden, onjuistheden of andere onregelmatigheden, noch voor de gevolgen daarvan. Alle verstrekte maten en oppervlaktes dienen als indicatie en zijn niet bindend. Kopers worden uitgenodigd om deze gegevens zelf te (laten) verifiëren. De verstrekte informatie moet worden beschouwd als een uitnodiging om een bod te doen of om in onderhandeling te treden.

Kenmerken