Description
Interesse? Laat je gegevens achter via de contactknop en we sturen je een link om jouw bezichtiging in te plannen. / Interested? Leave your details using the contact button and we’ll send you a link to schedule your viewing.
Hey! Are you looking for a well-finished ground-floor apartment with a large garden and green view over the Amelandseplein? Here you can enjoy a peaceful neighborhood with everything you need around the corner and excellent accessibility.
Neighborhood and Accessibility
The neighborhood is lively and green, with playgrounds and parks just around the corner. For your daily shopping, Zuidplein shopping mall is within walking distance, along with several supermarkets, shops, cozy restaurants and coffee bars. Rotterdam city center is easily reachable by bike, and Zuidplein metro station is just a few minutes’ walk away. By car, you can access the Rotterdam Ring Road in no time.
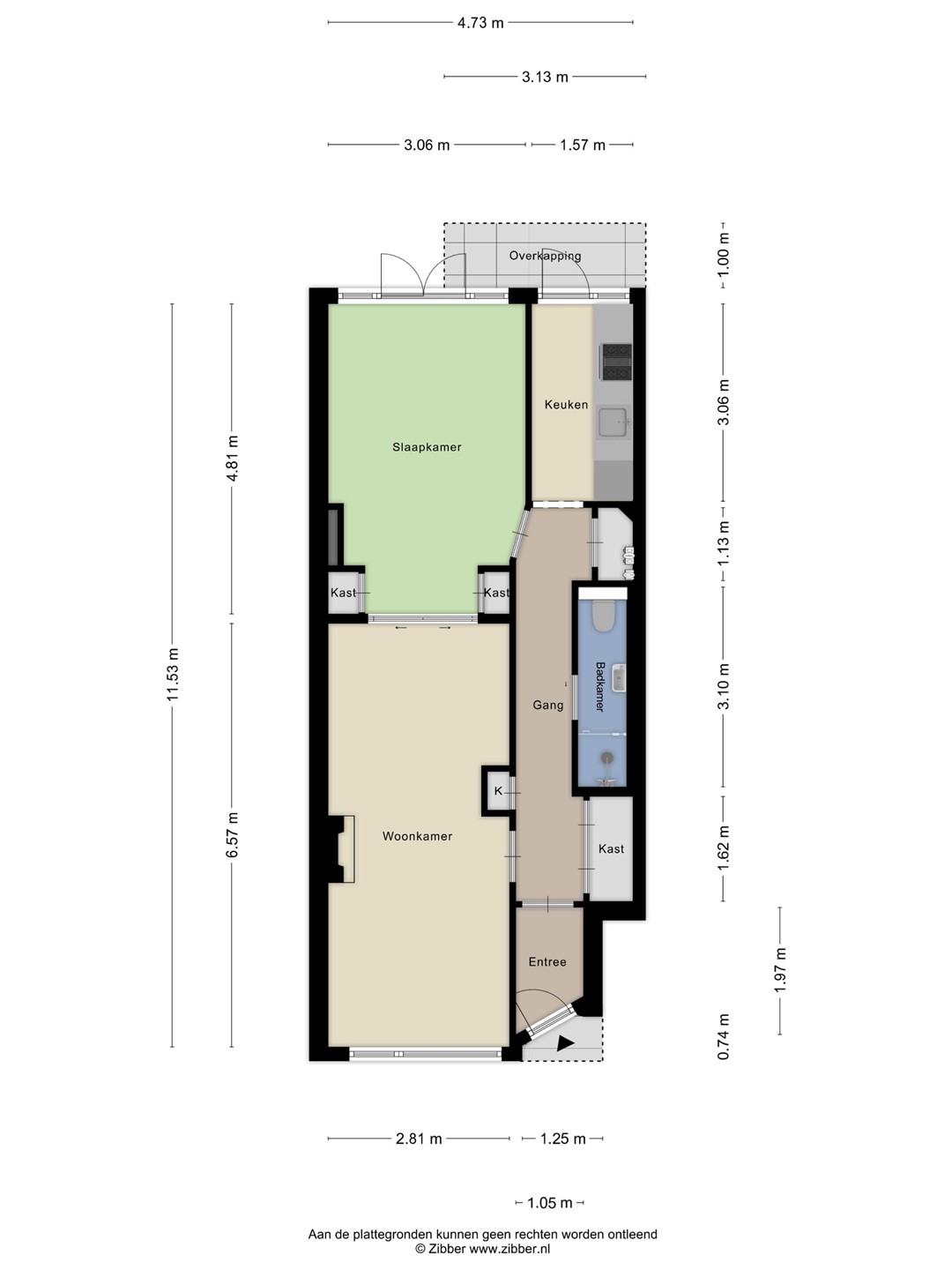
Layout of the Property
Ground Floor
Private entrance with hallway giving access to all rooms. The bright living room is at the front, and the connecting doors lead to the bedroom at the back. The modern kitchen is in good condition and also located at the back. The toilet and bathroom have been recently renovated and are neatly finished. In the hallway, you’ll find a storage closet with a convenient connection for the washing machine.
Outdoor Space
The deep southeast-facing garden is the perfect place to relax and enjoy the sun. Thanks to the back entrance, the garden is also practically accessible.
Storage
In the backyard, there is a spacious storage shed, ideal for bicycles, garden tools or extra storage.
Key Features
• Built around 1939
• Energy label C
• Living area approx. 52 m²
• 1 bedroom
• Heating and hot water via HR-boiler
• Fully fitted with plastic window frames and double glazing
• Active homeowners’ association (VvE), contribution €83 per month
• Immediate transfer is possible
Don’t miss this opportunity and schedule a viewing soon!
This information has been compiled with care. However, we accept no liability for any inaccuracies, incompleteness or other irregularities, nor for the consequences thereof. All measurements and surface areas are indicative and non-binding. Buyers are invited to verify these details themselves or have them verified. The information provided should be regarded as an invitation to make an offer or to enter into negotiations.