Beschrijving
Interesse? Laat je gegevens achter via de contactknop en we sturen je een link om jouw bezichtiging in te plannen. / Interested? Leave your details using the contact button and we’ll send you a link to schedule your viewing.
Hey! Starters opgelet! Ben je op zoek naar een instapklare benedenwoning met een heerlijke voor- en achtertuin in Den Haag? Dan wil je deze woning niet missen!
In de rustige wijk Zuiderpark woon je comfortabel met alle voorzieningen binnen handbereik. Winkels, parken en openbaar vervoer liggen letterlijk om de hoek. De woning is volledig gerenoveerd met oog voor detail, beschikt over triple glas en is energiezuinig. Je kunt er zo in!
Wijk en bereikbaarheid
De ligging is ideaal. Op loopafstand vind je supermarkten, winkels en gezellige restaurants. Met de tram of bus ben je in korte tijd in het centrum van Den Haag of op het strand van Scheveningen. De snelwegen A4, A12 en A13 zijn uitstekend bereikbaar.
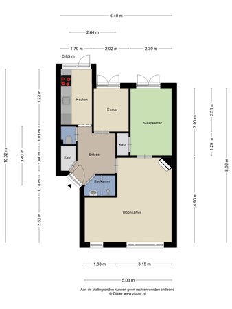
Indeling van de woning
Begane grond
Eigen entree met hal, meterkast en bergkast met wasmachineaansluiting. De lichte L-vormige woonkamer ligt aan de voorzijde en is voorzien van vloerverwarming. De moderne keuken is uitgerust met diverse inbouwapparatuur en biedt toegang tot de tuin.
Aan de achterzijde ligt een slaapkamer met openslaande deuren naar de tuin en daarnaast een extra slaapkamer, ideaal als werkplek of logeerkamer. De badkamer heeft een moderne afwerking met inloopdouche en wastafel. Er is een separaat toilet.
Buitenruimte
De ruime achtertuin op het noordwesten biedt volop plek om te ontspannen of buiten te eten. ideaal voor fietsen of extra opslag. Daarnaast is er ook een voortuin op het zuidoosten waar je heerlijk van de zon kunt genieten.
Berging
In de achtertuin staat een ruime berging.
Bijzonderheden
• Bouwjaar circa 1926
• Energielabel A
• Gebruiksoppervlakte wonen circa 54 m²
• 2 slaapkamers
• Verwarming en warm water via Remeha HR-ketel (2020)
• Volledig voorzien van kunststof kozijnen met triple (!) glas
• VvE actief, bijdrage € 142,- per maand
• Eeuwigdurende erfpacht, canon € 62,90,- per jaar plus € 33,- per jaar beheerkosten
• Oplevering in overleg
Mis deze kans niet en plan snel een bezichtiging van deze instapklare benedenwoning aan de Bussumsestraat 105!
Deze informatie is zorgvuldig door ons samengesteld. Wij aanvaarden echter geen aansprakelijkheid voor eventuele onvolledigheden, onjuistheden of andere onregelmatigheden, noch voor de gevolgen daarvan. Alle verstrekte maten en oppervlaktes dienen als indicatie en zijn niet bindend. Kopers worden uitgenodigd om deze gegevens zelf te (laten) verifiëren. De verstrekte informatie moet worden beschouwd als een uitnodiging om een bod te doen of om in onderhandeling te treden.